+91 94450 03833
udhayamassociates@yahoo.com
Sembakkam Main Road, Lakshmi Nagar, Chitlapakkam.
Udhayams
Menu
Home
About Us
Ongoing Projects
Completed Projects
Contact Us
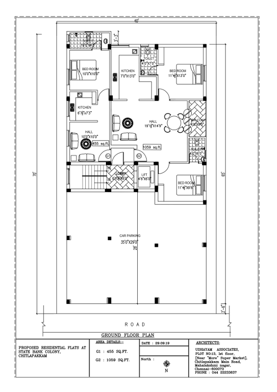
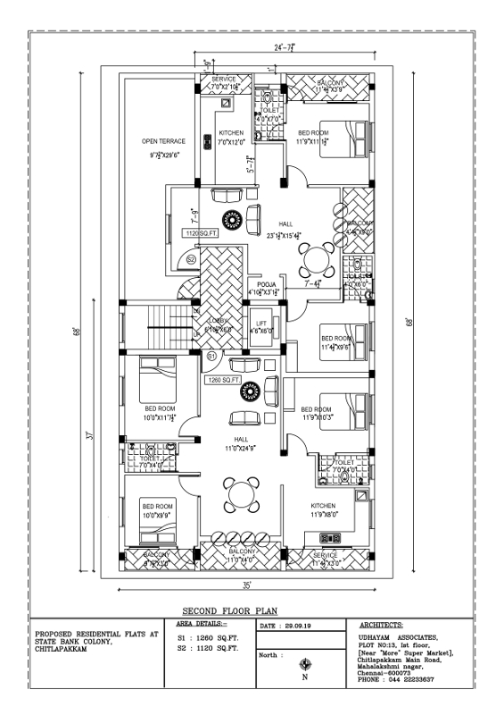
State Bank Colony
Floor Plans: