WE ARE EXPERT IN
OVERVIEW
A premium housing project launched by Udhayam Associates, Sai Abishek in Chitlapakkam, Chennai. Chitlapakkam is a Residential Locality in Chennai metropolitan area, in the state of Tamil Nadu, India. It is well known for its small, perennial lake and adjoining ecosystems.
Tambaram Sntrm Railway Station & Chrompet Rail Way Station are very near to Chitlapakkam. Its also connected by MTC Chennai and can be reached by several routes. It is becoming the largest residential area between Tambaram and City. Many schools, Engg.colleges, 24/7 Hospitals are near the location.
Amenities:
- Two wheeler parking
- Common room
- Marked covered car parking
- Inverter wiring for each flats
- Servant & driver rest room
- CCTV camera
SPECIFICATION
Walls
Brick masonry well plastered with Cement mortar.
Tiles
- Entire Flooring 2' x 2' Vitrified tiles
- Toilet Flooring — Anti Skid Ceramic Tiles
- Toilet Wall— Glazed tile up to 7' 0" height
- Kitchen Wall — Glazed tile up to 4' 0" height
Painting
lnner and Outer walls emulsion paint, Asian or equivalent.
Joineries
- Main door— Teak wood frame with panel door.
- Bed room, Balcony — Teak wood frame with flush door.
- Toilet -- PV.c door
Electricals
Fully concealed Cable wiring and ISI Brand Switches.
Plumbing
- Using good branded pipes, UPVC, CPVC, and pvc
- Sanitary ware: Parry ware, good quality C.P fittings.
Elevator
6 passengers capacity.
Handrails
Stair case S.S handrail.
Connectivity
TV & Telephone wiring living and bedroom
PROJECT LOCATION:
Sai Abishek, Chitlapakkam, Chennai, Tamil Nadu 600041.
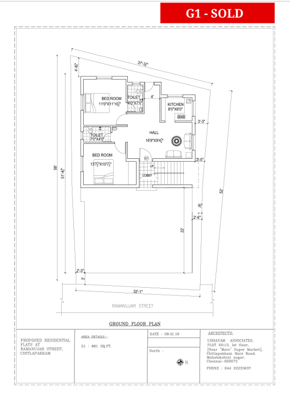
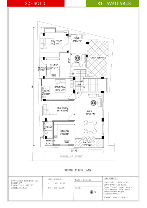
| FLAT NO | SQ FT | BHK | AVAILABLE (OR) SOLD |
|---|---|---|---|
| G1 | 861 | 2 BHK | SOLD |
| F1 | 1063 | 2 BHK | AVAILABLE |
| F2 | 845 | 2 BHK | AVAILABLE |
| S1 | 1063 | 2 BHK | AVAILABLE |
| S2 | 600
|
1 BHK | SOLD |



